Mieszkanie Gołdap, Osiedle Młodych
Gołdap Pokaż na mapie ›
Odświeżone: Wtorek, 30 Grudzień, 2025 13:18
215 000 zł
4300 zł/m2
Szczegóły ogłoszenia
- Kategoria: Mieszkania / Sprzedaż
- Powierzchnia:50 m2
- Liczba pokoi:2 pokoje
- Zabudowa:Blok
- Piętro :4 piętro
- Liczba pięter:4 piętra
- Rynek:Wtórny
- Sprzedaż:Pośrednik
- Cena: 215 000 zł / 4300 zł/m2
Opis oferty
Oferujemy na sprzedaż mieszkanie o powierzchni 50,9 m.Ekspozycja okien w lokalu: północ, południe. Przestronny balkon skierowany na stronę południową. Mieszkanie położone jest na IV piętrze bloku, który znajduje się w zasobach spółdzielni mieszkaniowej.
Osiedle Młodych, Gołdap.
Co oferuje przestrzeń tego mieszkania?
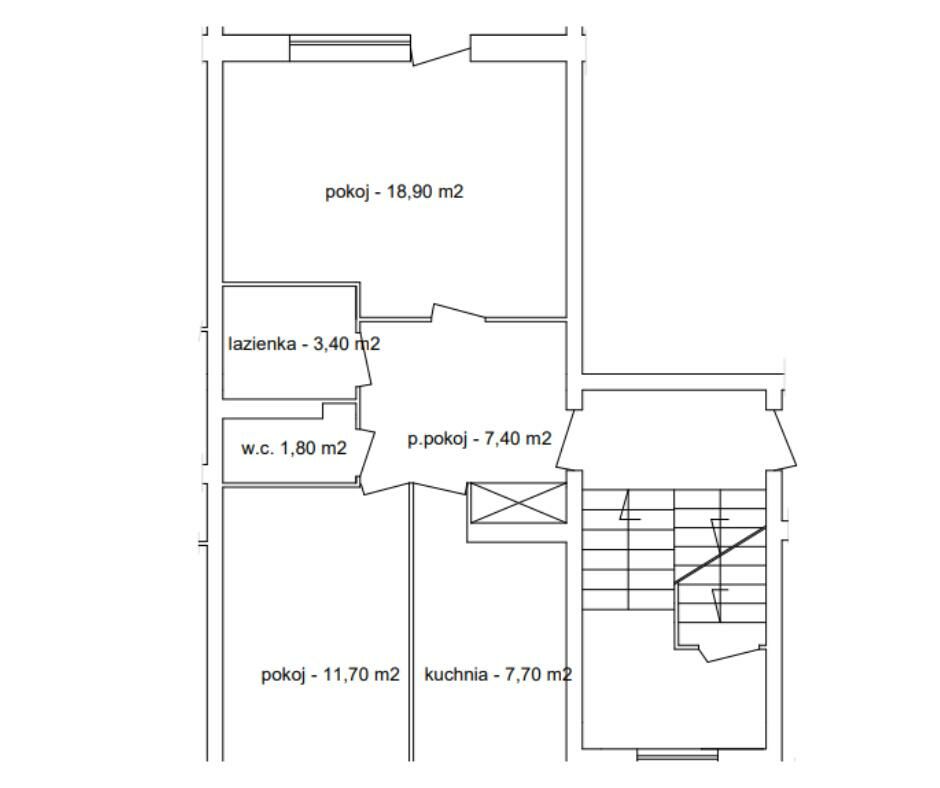
Mogą zapoznać się Państwo z rzutem lokalu, wchodząc w galerię zdjęć.
- Możliwość wydzielenia dwóch sypialni oraz salonu z aneksem kuchennym i wyjściem na balkon.
- Przestronny korytarz (7,4 m) z dużą szafą wnękową, który można wykorzystać jako funkcjonalną przestrzeń do przechowywania lub częściowo ją zmniejszyć, aby powiększyć pokój z balkonem (18,9 m), który jest idealną przestrzenią na strefę dzienną.
- Oddzielna łazienka i WC mogą zostać połączone, co pozwoli uzyskać dodatkową przestrzeń (1,8 m), doskonałą na pralnię, garderobę lub spiżarnię.
Powierzchnia pomieszczeń
- korytarz - 7,4 m
- łazienka - 3,4 m
- WC - 1,8 m
- kuchnia - 7,7 m
- pokój 11,7 m
- pokój z wyjściem na balkon - 18,9 m
Do mieszkania przynależy piwnica o powierzchni 6 m
Czynsz - 600 zł (bez zaliczek za wodę)
Cena podlega negocjacji, zapraszamy na prezentację nieruchomości.
Jeżeli Twój zakup wiąże się ze sprzedażą innej nieruchomości, koniecznie daj nam znać! Bezpiecznie poprowadzimy Cię przez cały proces.
Współpracujemy z Doradcą kredytowym, który oferuje dla naszych Klientów bezpłatną pomoc w organizacji wszystkich formalności niezbędnych do uzyskania kredytu hipotecznego, dobierając ofertę możliwie najkorzystniejszą, spośród ofert kilkudziesięciu banków.
Zaufaj nam i ciesz się spokojem podczas realizacji swoich marzeń o nowej nieruchomości.
Treść niniejszego ogłoszenia nie stanowi oferty handlowej w rozumieniu Kodeksu Cywilnego.
Oferta wysłana z programu IMO dla biur nieruchomości
Numer oferty: 60
Sprawdź zainteresowanie tym ogłoszeniem
Wyświetlenia
Data dodania
Ostatnio widziany
Obserwujących
Wysłane zapytania
Odsłony telefonu
Powiadom o podobnych ogłoszeniach
Lokalizacja: Gołdap
Kategoria: Nieruchomości » Mieszkania » Sprzedaż
Cena: od 183000 zł do 247500 zł Powierzchnia : od 43 m2 do 58 m2
Chcę otrzymywać powiadomienia o nowych ofertach
Broker Market
Konto firmowe
Na Lento.pl od 15 maj 2023
Odpowiada szybko
Strona użytkownika
- Wypromuj ogłoszenie
- Zgłoś naruszenie
- Drukuj ulotkę
- Edytuj/usuń ogłoszenie
- Udostępnij ogłoszenie
- Dodaj na Facebook























